Otter Valley Middle School Model Proposal
Informational Page
Right for Our Students. Ready for Tomorrow.
This is to serve as a regularly updated landing page for information about the OV Middle School Model Proposal.

Please join us for our OVUU Annual District Meeting! This informational gathering will include a presentation on the Middle School Proposal, amongst other discussion items - the full agenda can be found here.
A Note on the Agenda: To follow state standards, we have placed the Middle School Proposal under "Other Business" for the Annual District Meeting. Since this is not yet a formal vote, this is the proper procedural way to present the information. We wanted to get these details to you as soon as possible because we want our community to be informed and excited about these improvements! We hope you are too!
Check back here Monday afternoon (2/23) for the full presentation slideshow.
Community Input
We'd love to hear your thoughts about this project!
Submit a comment - anonymous or otherwise - through our Reach Out platform.
News Articles
A new middle school at Otter Valley is a long way off - Rutland Herald, Oct 19, 2022
Otter Valley Board ad hoc committee continues middle school model discussion - Rutland Herald, March 19, 2025
Otter Valley Facilities Committee works with architect for initial schematics on construction proposal - Rutland Herald, May 21, 2025
Otter Valley School Board discusses two construction proposals from ad hoc facilities committee - Rutland Herald, July 1, 2025
OVUU School Board considers new Middle School - The Reporter, July 2, 2025
Otter Valley Board says 'maybe' to redistricting talks, examines middle school model communication - Rutland Herald, Sept 17, 2025
Otter Valley School Board approves motion to move forward with middle school model - Rutland Herald, Nov 19, 2025
OVUU Board Meetings - Agendas, Supplemental Documents, Minutes, and Meeting Recordings
Specifically, meetings that occured on:
December 16, 2025
November 18, 2025
September 16, 2025
June 24, 2025
June 17, 2025
January 21, 2025
April 9, 2024
February 20, 2024
Specifically, meetings that occured on:
October 18, 2022
October 20. 2021
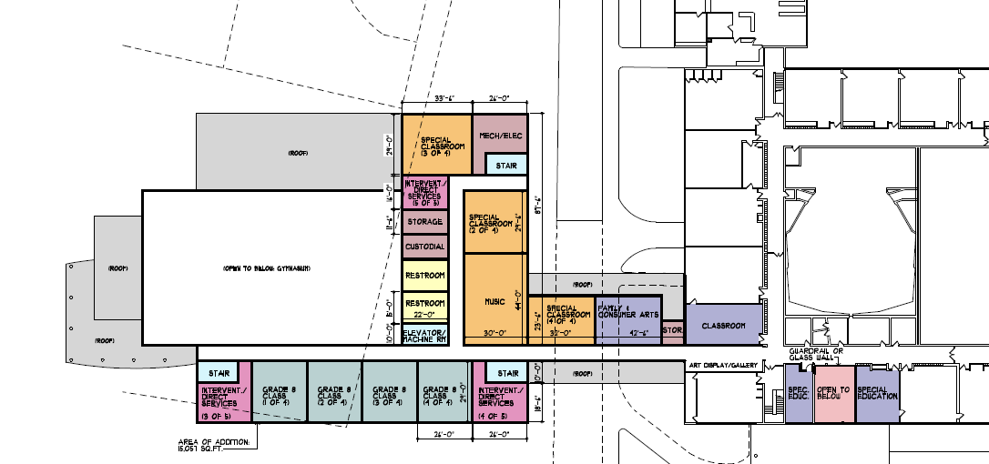
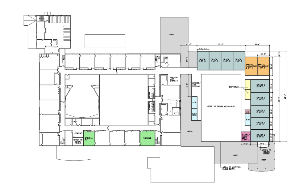
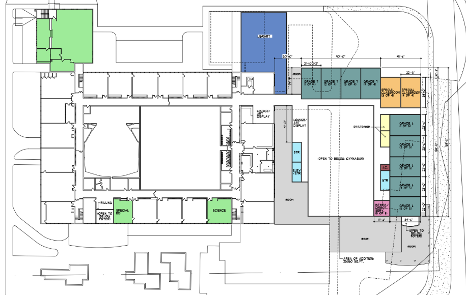
Initial Floor Plan Proposals
From June 2025
Please click on image for a better view!





